√100以上 寝殿造 対屋 282428-住居 寝殿造 対屋
主殿には対面や仏事を行う部屋、寝室などがあり、一つの完結した生活の場となっていた。 この形式は、渡り廊下で寝殿と対屋をつなぐ 寝殿造 や、玄関・大書院・小書院などを連ねる 書院造 とも異なっており、一つの独立した様式であるとして「主殿造寝殿造(しんでんづくり)とは、平安時代から中世にかけての上層住宅の建築様式である 。 かつては東西に立派な対、南に大きな池を持つ左右対称の豪華の屋敷と考えられていたが、それは江戸時代の故実家の想像に過ぎず 、その実態は階層により、時代により甚だ変化のあるものと見られて平安貴族の邸宅というと、寝殿 造を思い起こされる方が多いので はないでしょうか。1町域(約 14ha)の広大な敷地に、正殿であ る寝殿と背後に後殿、正殿の左右 には対屋などの建物が整然と配置 され、各建物間は廊によって繋が

中世の寝殿造 Wikiwand
住居 寝殿造 対屋
住居 寝殿造 対屋-しんでん‐づくり 寝殿造 平安時代の貴族住宅の形式。 中央に南面して寝殿を建て、その左右背後に対屋 たいのや を設け、寝殿と対屋は廊(渡殿)で連絡し、寝殿の南庭を隔てて池を作り中島を築き、池に臨んで釣殿を設ける。 邸の四方に築垣を設け、東西に門を開く。寝殿造を全面リライトしました 寝殿造を全面リライトしました。 追記: 寝殿造の歴史index、及び 建築史・古建築 indexは本稿の為の下調べで、本稿で使用した画像の多くは「建築史・古建築 index」のとき撮影したものです。 しかし2分後にInception10さんが差し戻されました。




寝殿造とは 一般の人気 最新記事を集めました はてな
寝殿造 内部 寝殿造では、室内の利用の仕方によって多様な障屏具が用いられ、広い空間が必要な儀式や饗宴 (きょうえん) の時は障屏具を取り払い、私的な生活の時には御簾や几帳を用いて空間が作られた 貴族の邸宅は寝殿造(しんでんづくり)とよばれるもので、正式なものは一町四方の寝殿を中央にして、その両側に 対屋 たいのや が配置される形式は、どこか左右対称の鳳凰堂と似ています。 しかし、厳密にいえば両者は別ものです。 決定的な違いは建物の配置にあります。対の屋(たいのや)とは。意味や解説、類語。寝殿造りで、主人の起居する寝殿に対して東・西や北につくった別棟の建物。妻や子女が住み、透渡殿 (すきわたどの) や渡殿で寝殿と結ばれる。 goo国語辞書は30万4千件語以上を収録。政治・経済・医学・ITなど、最新用語の追加も定期的に行って
Architectural Institute of Japan NIIElectronic Library Service Arohiteotural エnstitute of Japan 研究論文 UDC ;72.03 :728 .1 日本建築学会論文報告集 第316号・昭和57年6月 寝殿造の典型像とその成立をめぐっ て (上) 正 会 員 川 本 重 雄* 序 周知の ごとく寝殿造とは寝殿・対などの建物 寝殿造り〜書院造り、数寄屋造り。 日本建築の移り変わりとその特徴とは? 日本の名城を訪れると、その多くは日本建築であり、広い畳張りの座敷があったり、豪華な襖絵や障壁画を見ることができます。 古くからその地にある寺院なども、天井は高く東三条殿とは 平安時代の寝殿造建築の一つで、藤原摂関家の邸宅だった。 建築配置は、南向きの寝殿を中心に、寝殿と同様の平面構成を持った対屋を寝殿の東西、 あるいは北側などに配置し、渡殿(渡り廊下)で繋がっている。東西の対屋からは南へ廊
寝殿造の住宅の建物配置は、中央に主屋 (しゅおく)として南面する寝殿を建て、その東西には寝殿に向き合うように東対 (ひがしのたい)あるいは西対 (にしのたい)の対屋 (たいのや)、北には北対 (きたのたい)を置き、寝殿と対屋は渡殿 (わたどの)とよばれる廊 (ろう)でつながれる。寝殿造の祖型である、九世紀の山城高校遺跡出土の寝殿も二面庇である。 鎌倉時代の社寺建築の例も参考にして、寝殿造と対屋は切妻造の妻面に縋破風で広庇を 付けた形式であったという試案を提示したい。 2.厳島神社の竈殿についてに並列する様子は貴族の邸宅に採用されていた寝殿造に おける寝殿と対屋との配置に類似し、建物配列の起源が 寝殿造にあることは明らかである。杉本(8)は、法成寺 で成立した寝殿造系の浄土庭園が、法勝寺タイプと平等



寝殿造2 3 寝殿造の内郭 東西の対




寝殿造 Wikipedia
Start studying 寝殿造 Learn vocabulary, terms, and more with flashcards, games, and other study toolsている。そしてこの初期寝殿造の祖形が図23の 左右対 称の四合院住宅とみなし,正房は寝殿に,東 西の廟房は 東と西の対屋に相当するとしている。ただ四合院住宅の 廟房は正房の南側なのに対して寝殿造の対屋は寝殿の両平安中期に成立した貴族の住宅形式。 中央に 寝殿 とよぶ主屋があり、その東・西・北にそれぞれ 対屋 (たいのや) を設け、 渡殿 (わたどの) で結ぶ。 東西両対屋から南に 中門廊 を出し、中ほどに 中門 を、先端の池畔に 釣殿 を設ける。




中世の寝殿造 Wikiwand



寝殿造5 4 寝殿造の変質を象徴するもの
古典常識②建築・調度・乗り物編 格子の形に組んだ木の裏側に板を貼ったもの。 南に向かっている方角。 転じて寝殿造で南向きの正殿を指す。 Nice work!小説・源氏物語の中で出てくる日本庭園:「寝殿造庭園」とは オシャレな外構(エクステリア)を作るための全知識 yogosawa3 古くから日本に伝わる庭といえば、日本庭園が◆平安時代の貴族住宅の形式。 中央に南面して寝殿を建て、その左右背後に 対屋 を設け、寝殿と対屋は廊 (渡殿)で連絡し、寝殿の南庭を隔てて池を作り中島を築き、池に臨んで 釣殿 を設ける。




六条院の3dのファイルをいただきました 水晶語り



紫式部公園 紫式部像
① 寝殿造り で、正殿である 寝殿 の左右および後ろに相 対 して建てた別棟の建物。「寝殿」の名称は、『宇津保物語』にすで たいのや 正殿あり。南面。其東西もしくは北に対屋といふも けんぞく のあり。正殿は主人常住の t ころ、対屋は家内容属 の居るところなり」と定義している。 その後の研究もふまえると、寝殿造りとはおよそ 次 寝殿造・塗籠(ぬりごめ)の夫婦寝室 テーマ: 理想の住宅像~各論 塗籠とは、平安期の皇族・貴族等の典型的な邸宅(寝殿造)において、主人が生活する正殿(寝殿)や、その家族が生活する対屋(たいのや)の、母屋(もや、身舎)端部片側



日本史 寝殿造




寝殿造り 書院造り 数寄屋造り 日本建築の移り変わりとその特徴とは 酒とネコ
寝殿造平安時代 「寝殿造」とは日本の伝統的な木造住宅の建築様式の一種です。 おそらく日本史に詳しいかたなら、すぐに平安時代に作られた貴族のための屋敷としてイメージが浮かぶかとは思います。 あまり日本史に詳しくはないという人であっ




知ればもっと旅が楽しくなる 建築としつらえの用語集 一休コンシェルジュ



1



寝殿造について私は大阪に住んでおり 平安時代の寝殿造について調べてるのですが Yahoo 知恵袋




透渡殿とは コトバンク




寝殿造とは 一般の人気 最新記事を集めました はてな




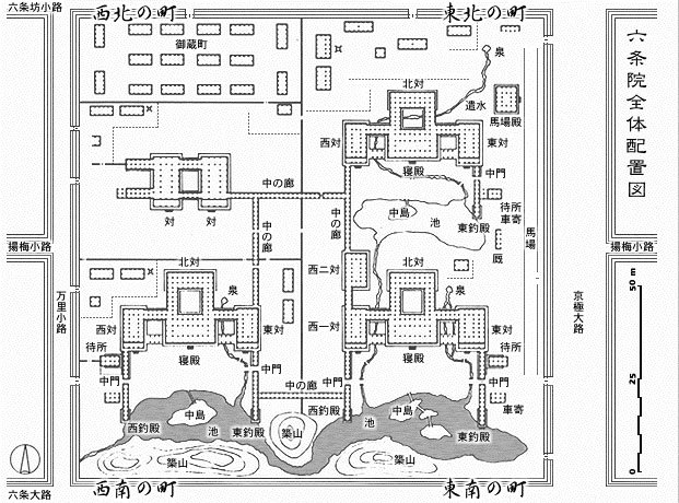
六条院 光源氏の住まい Archiscape




File G540 Wiki5 Hsjd Png Wikimedia Commons



Wiki5 寝殿造の内郭




中世の寝殿造 Wikipedia



共同体社会と人類婚姻史




Web教材イラスト図版工房 S 寝殿造 2



この図の南の廂の間はどこですか 東西の対屋も北対屋もすべて寝 Yahoo 知恵袋




寝殿造 Wikiwand




寝殿造 Wikipedia



寝殿造 シンテ ンツ クリ 広辞苑無料検索 学研国語大辞典



寝殿造2 3 寝殿造の内郭 東西の対




寝殿造 Wikipedia




寝殿造はとても寒い 特徴を書院造と比べながら説明するよ 大学受験の日本史を極めるブログ




日本建築史 日本の住居の移り変わり Ppt Download




寝殿造 Wikipedia




寝殿造から書院造へ 文化史06 しんでんづくりからしょいんづくりへ 印刷用pdfファイル 目次 知る 寝殿造とは 居住と儀礼の空間 寝殿 対 南庭 内と外の境界 中門廊 中門 出入りと事務方の空間 車宿 随身所 侍廊 寝殿 対の内部構造と 室礼




寝殿造 Wikipedia




Ic Sd 六条院 0606 寝殿造概説と六条院



寝殿造5 4 寝殿造の変質を象徴するもの



Www Obayashi Co Jp Kikan Obayashi Upload Img 034 Idea Pdf




寝殿造 シンデンズクリ の意味や使い方 Weblio辞書




格子状の左右対称にこだわる 中心線の文化 と それを嫌う 屈曲線の文化 8 日本建築は 近景 生涯一設計士 佐々木繁の日々




寝殿造 Wikipedia




寝殿造りと浄土庭園 藤はなの窓 世界遺産 平等院




ファイル G0301 Hsjd Png Wikipedia




後白河法皇の法住寺殿 南殿の間取り図を作成してみました 3d京都




渡殿のある家 家 多目的ルーム 寝殿造り




第13回 年中行事絵巻 巻三 闘鶏 の寝殿造を読み解く その1 絵巻で見る 平安時代の暮らし 倉田 実 三省堂 ことばのコラム



寝殿造



1



日本史 寝殿造




平安貴族の寝殿造り 真夜中時間




観照 再録 京都 下京 風俗博物館にて 源氏物語 六條院の生活 3 遊心六中記 楽天ブログ



Www Obayashi Co Jp Kikan Obayashi Upload Img 034 Idea Pdf




第15回 年中行事絵巻 巻三 闘鶏 の寝殿造を読み解く その3 絵巻で見る 平安時代の暮らし 倉田 実 三省堂 ことばのコラム



Http Www City Iwaki Lg Jp Www Contents Simple Filesui2 Pdf



えさし藤原の郷 岩手県奥州市




平安時代 寝殿造の構造と内装の特徴 しつらいの座臥具 障屏具 収納具 時は素敵な暮らしなり




泉殿とは コトバンク




寝殿造り Nhk For School



寝殿造6 2 寝殿造の時代区分




寝殿造のインテリア 平安時代の文化と寝殿造の特徴はこれだけ読めばok 日本のインテリアの歴史 インテリアのナンたるか




小説 源氏物語の中で出てくる日本庭園 寝殿造庭園 とは 見積り外構工事 優良なエクステリア業者を無料で紹介 提案




京都御所3d現場顛末記 対屋編 その三 3dcg 3d京都




住まいとしての日本建築の歴史 ノスタルジックジャパン



しんでん づくり 寝殿造 広辞苑無料検索



伊勢 語句 西の対




寝殿造 貴族の住空間 貴族の生活 風俗博物館 よみがえる源氏物語の世界




中世の寝殿造 Wikipedia




寝殿寝殿は主人の住居で ここで行事や儀礼を行ったりしました 大きさは だいだい建て12メートル 横21メートルほどでした それでは寝殿の中を詳しく見てみましょう 寝殿造り 伝統的な日本家屋 マイクラ 建築 和風



Repository Kulib Kyoto U Ac Jp Dspace Bitstream 2433 1 Rek18 1 Pdf




日本建築史 寝殿造りとは Ura410 ウラシドウ 物語



寝殿造8 2 寝殿造の発展過程



平安時代の歴史図解コーナー




寝殿造とは コトバンク




寝殿造 貴族の住空間 貴族の生活 風俗博物館 よみがえる源氏物語の世界



平安時代へ えさし藤原の郷 4 タイムスリップ ふでの蹟 雑記帳



1




寝殿造 塗籠 ぬりごめ の夫婦寝室 Hira Ei Blog




寝殿造 Wikipedia



Search Q E5 Af 9d E6 Ae Bf E9 80 A0 B9 E7 B0 A1 E5 8d 98 Tbm Isch




平安モデリング 其の一




寝殿造りから書院造りへ おもしろ住まい学




寝殿造 ラフェットの備忘録




源氏物語を読んできて 住い 寝殿造り 永子の窓




寝殿造 Wikipedia




サービス終了のお知らせ 伝統的な日本家屋 寝殿造り 日本の民家




寝殿造り 書院造り 数寄屋造り 日本建築の移り変わりとその特徴とは 酒とネコ




寝殿造から書院造へ 文化史06 しんでんづくりからしょいんづくりへ 印刷用pdfファイル 目次 知る 寝殿造とは 居住と儀礼の空間 寝殿 対 南庭 内と外の境界 中門廊 中門 出入りと事務方の空間 車宿 随身所 侍廊 寝殿 対の内部構造と 室礼




寝殿造とは コトバンク



日本史 寝殿造




平安時代の貴族の屋敷が豪華すぎる 驚きの家の広さと寝殿造とは 平安時代ブログ




住まいとしての日本建築の歴史 ノスタルジックジャパン




刀剣ワールド 平安時代の住宅 家 とは




寝殿造 貴族の住空間 貴族の生活 風俗博物館 よみがえる源氏物語の世界



Wiki7 建築史での寝殿造



Lot 73 妖 あやかし の住む院 Page1 Page3 まずは東の門からご案内 この門は 本当は牛車が通れるくらい大きく 門の内には車宿りといって いわゆる車庫の建物がありました 主人は毎日この門から大勢の供をつけて出入りするし お客さんもこの




寝殿造 Wikiwand




サービス終了のお知らせ 寝殿造り 日本家屋 建築




源氏物語の住まい 貴族の生活 風俗博物館 よみがえる源氏物語の世界




寝殿造 塗籠 ぬりごめ の夫婦寝室 Hira Ei Blog




Web教材イラスト図版工房 S 竪穴住居 寝殿造 武家造 2



学科 苦手な建築史 寝殿造 Road To 一級建築士 四十代の挑戦 改め 四十代での惨敗 現在五十代



Webアニメスタイル Artwork マイマイ新子と千年の魔法 第12回 美術 2




日本建築史 東三条殿と寝殿造り 荘司 和樹 しょうじ かずき Note




釣殿とは コトバンク




寝殿造 Wikiwand



装 束




Shinden Zukuri Wikiwand




全国お客さま探訪 歴史公園えさし藤原の郷 株式会社日立ビルシステム




寝殿造りとは 建築学生が解説 Patio
コメント
コメントを投稿